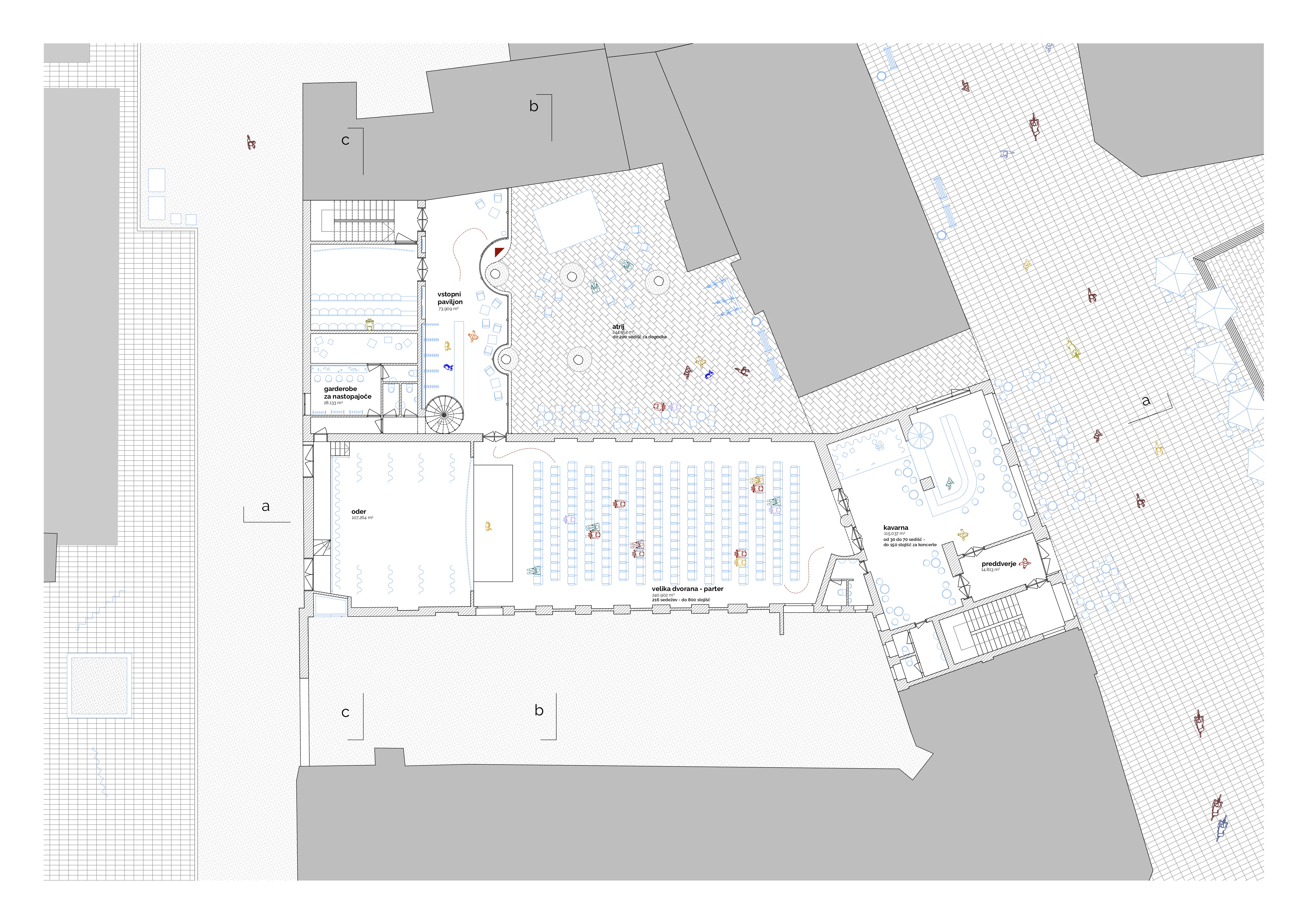
prenova Mestnega Kina Metropol
naročnik: DZU Filter in Hiša kulture Celje
lokacija: Celje
leto projekta: 2016
vrsta projekta: IDZ - študija
︎projektanti: Mojca Črešnik, m. i. a.
Matija Kovač, abs. arh.
Lenart Piano, štud. arh.
naročnik: DZU Filter in Hiša kulture Celje
lokacija: Celje
leto projekta: 2016
vrsta projekta: IDZ - študija
︎projektanti: Mojca Črešnik, m. i. a.
Matija Kovač, abs. arh.
Lenart Piano, štud. arh.
lokacija: Celje
leto projekta: 2016
vrsta projekta: IDZ - študija
︎projektanti: Mojca Črešnik, m. i. a.
Matija Kovač, abs. arh.
Lenart Piano, štud. arh.





